Edullect Academy London, Melville Court
- Romford, Essex, RM3 8SB
- 300 Pupil Capacity
- DfE Approved School
INVESTMENT PROGRESS
Progress Tracker
EDULLECT ACADEMY LONDON: SHARE ALLOCATION
102/220 [Ā£1.02M/Ā£2.2M]
118 shares remaining
46% allocated
SPV ENTITY
Edullect Academy London LTD
This dedicated Special Purpose Vehicle (SPV) holds the Melville Court property as its sole asset, ensuring a fully ring-fenced investment with clear transparency and enhanced security for all community shareholders. The structure is designed to protect investor interests while maintaining strong governance and accountability.
The asset itself is a fully operational, purpose-built school facility occupied by Edullect Academy Independent School. It features dedicated Nursery and Primary provisions with a combined capacity of up to 300 pupils, supporting a growing and sustainable educational environment.
Revenue is secured through a long-term lease agreement with the operating school, generating stable rental income for the SPV and delivering consistent returns to shareholders. In addition, investors benefit from fully asset-backed shares, providing exposure to the underlying property and potential capital growthācreating a balanced opportunity for both income and long-term value appreciation.
Property
Edullect Academy London
Location
Melville Court, Spilsby Rd, Romford, Essex, RM3 8SB
Ownership
Freehold
Type
Purpose-Built School
Building Cost
Ā£2,000,000
Additional Costs
Ā£200,000 (inc. contingency)
Tenant
Edullect Academy Independent School
Education Service
Nursery & Primary
Capacity
300 Pupils
Accreditation
Department for Education Approved School
Regulated
Ofsted
Tenancy
August 2024
Total Shares
220 Shares
Allocated
102 Shares (46%)
Remaining
118 Shares
SPV
Edullect Academy London LTD
Holding
Edullect Commercial LTD
Ethical Investment
Shari'ah Compliant (Halal)
Regulatory
FCA Excemption
INVESTMENT INVITATION FROM THE FOUNDER & CEO
Round 2: 100 Shares
Ā£12,000 Per Share
Round 2 Ends on 31 August 2026
Round 3: 20 Shares
Ā£13,000 Per Share
Round 3 Starts from 1 September 2026
Rental Income
Starting 7.5% Rental Yield (Round 2)
Projected Share Capital Growth (1ā2Y): 15ā30%
Liquidity
Tentatively 48 Hours
Quick Share Sale & Transfer
PROPERTY GALLERY






PROPERTY DETAILS
Property Features
- Excellent location with easy access from the M25 and A12, and strong public transport links
- Grand headquarters-style building with a strong visual presence
- D1 Education planning permission granted
- Fully upgraded building with the latest fire safety systems
- Approved student capacity of up to 300 (DfE approved)
- On-site parking for a minimum of 14 vehicles on privately owned land
- Large front and rear playgrounds featuring artificial grass, security fencing, and privacy screening
- Separate entrances for nursery, reception, and primary sections
- Spacious and secure reception area
- Purpose-built educational facility with a secure building design
- Comprehensive CCTV coverage throughout the premises
- Zoned public address (speaker) system installed across all areas
- Fully serviced lift with an 8-person capacity
- Large open-plan nursery classroom with capacity for up to 80 pupils, plus a separate sensory classroom
- Spacious nursery common room
- Large open-plan reception classroom with two designated learning areas, accommodating up to 40 pupils
- Six large primary classrooms, each with a capacity of 30 pupils (total capacity: 180)
- Large open-plan technology room equipped with hologram facilities, 3D printers, and space for VR use
- Multi-purpose hall with seating capacity for up to 120 people
- Large boardroom accommodating up to 12 people, fully equipped with presentation screens
- Four dedicated staff office bases
- Large kitchen with fitted units
- Dedicated IT server room with fibre optic connectivity to the building
- Large medical room with shower and WC facilities
- Large staff room with kitchen facilities
- 23 WCs in total: 11 nursery-level, 8 mid-level, 3 staff, and 1 disabled WC
Area and Location
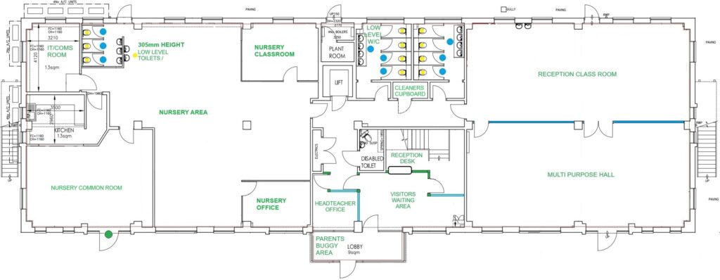
Ground Floor Plan
First Floor Plan
